The Volente | Rear Entry | Ten Mile Creek

Starting at $569,990
3,381
Square Ft
4
Bedrooms
3.5
Bathrooms
2
Story
2
Garage
Volente A

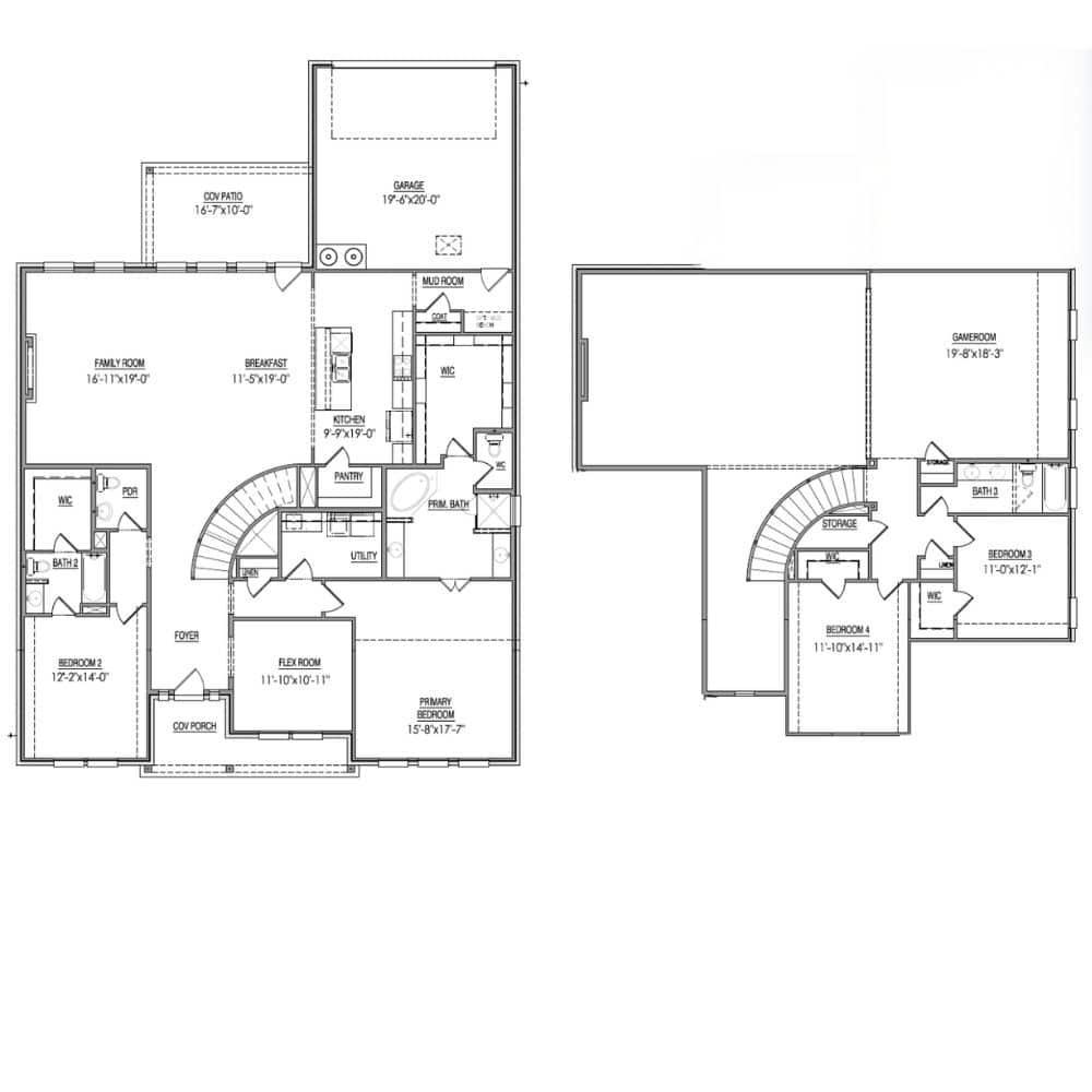
The Volente is a luxurious 4 bedroom, 3.5 bathroom new construction home in DeSoto, TX, offering over 3,300 sqft of elegant living space. The dramatic entry features a curved spiral staircase and a versatile Flex Room. A dedicated Mud Room off the garage provides essential organization. The heart of the home is the open Family Room and gourmet kitchen, featuring a walk-in pantry and large island. This plan includes two bedrooms on the first floor: the luxurious Primary Suite and a private guest suite with an attached ensuite bath. Upstairs, you will find a spacious Game Room and two additional bedrooms. A powder bath is centrally located for guests. This home includes a covered patio and energy-efficient spray foam insulation.

Available in these communities
Desoto,
TX

Available Exteriors

Included in this home

Available in these communities

Now Selling
Ten Mile Creek
Desoto,
TX
Dallas County
Starting at High $400s
2,304-3,128
Sq. Ft.
3-4
2-4
2-3

Information Request

Submit your best contact information below and our Community Sales Manager will reach out to you

Request A Tour

Our Online Sales Concierge will reach out to coordinate a time that works with your schedule. 

Information Request

Submit your best contact information below and our Community Sales Manager at Paloma Trails will reach out to you